БРЕВАС
  • Начало
  • За нас
  • Текущи проекти
  • Завършени проекти
  • Предложи парцел
  • Партньори
  • Контакти
Изберете страница

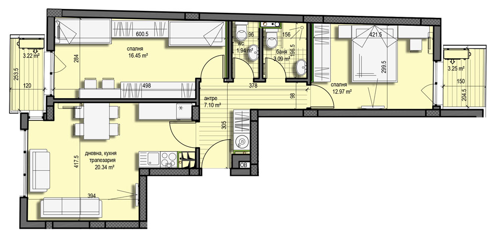
Проект Константин Величков 179 – Етаж 4 | Апартамент 13



Имот

Апартамент 13



Обща квадратура

95.19 кв.м



Застроена площ

78.87 кв.м

Текущи проекти

  • ПРОЕКТ Ж.К. РЕДУТА
    • ж.к. Редута, ет. 7
    • ж.к. Редута, ет. 6
    • ж.к. Редута, ет. 5
    • ж.к. Редута, ет. 4
    • ж.к. Редута, ет.3
    • ж.к. Редута, ет.2
    • ж.к. Редута, ет. 1
    • Редута, партер
  • ПРОЕКТ Ж.К. МАНАСТИРСКИ ЛИВАДИ, УЛ. ТОДОР ДЖЕБАРОВ
    • Проект ж.к Манастирски ливади – Пети етаж
    • Проект ж.к Манастирски ливади – Четвърти етаж
    • Проект ж.к Манастирски ливади – Трети етаж
    • Проект ж.к Манастирски ливади – Втори етаж
    • Проект ж.к Манастирски ливади – Първи етаж
    • Проект ж.к Манастирски ливади – Партер
    • Проект ж.к Манастирски ливади – Паркинг
  • ПРОЕКТ Ж.К. ОВЧА КУПЕЛ, УЛ. МОНТЕВИДЕО
  • ПРОЕКТ Ж.К НАДЕЖДА 3, УЛ. „КУМАНОВСКИ БОЙ“
  • Начало
  • За нас
  • Текущи проекти
  • Завършени проекти
  • Общи условия
  • Политика за поверителност
  • Контакти
  • Facebook

© Всички права запазени БРЕВАС | Designed by Alpha Best

Този сайт използва бисквитки. Научи повече